
Réglage 360°
Kit 2500 all-in ou longueur de 5000
Latérale (nez de dalle / pose en applique)
NF P01-012, NF P01-013
Le SB360A est la version en pose latérale (également appelée pose en nez de dalle) du système de garde-corps SB360. Cette configuration permet une fixation sur la face verticale de la dalle, libérant totalement la surface du plancher et offrant une continuité visuelle maximale. Le SB360A conserve les mêmes atouts que le SB360 en termes de sécurité et d’esthétique, tout en étant spécifiquement optimisé pour ce type d’installation. Conçu pour les projets résidentiels et publics, il allie un design épuré à une robustesse exceptionnelle.
Grâce à son mécanisme breveté, il permet un réglage précis en hauteur et en inclinaison, assurant une pose rapide et un alignement parfait des vitrages. Fabriqué en aluminium anodisé de haute qualité et équipé de verres feuilletés trempés, le SB360A résiste aux contraintes mécaniques et climatiques les plus exigeantes. Conforme aux normes NF P01-012 et NF P01-013, il a été testé dans un laboratoire certifié pour garantir sa fiabilité.
- Pose latérale (nez de dalle) libérant la surface du plancher
- Réglage rapide et précis de la hauteur et de l’inclinaison
- Design minimaliste et discret
- Optimisé pour certaines configurations spécifiques par rapport au SB360
- Compatibilité avec différents types de verres feuilletés trempés
- Installation simplifiée
- Finitions haut de gamme : anodisation ou thermolaquage
- Conformité aux normes NF P01-012 et NF P01-013
- Résistance testée en laboratoire certifié
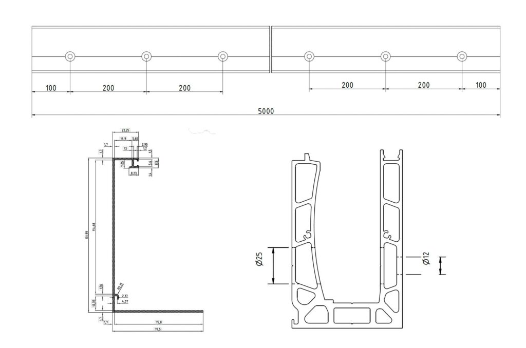
Dimensions du profil
76x115
Type de pose
Latérale (nez de dalle / pose en applique)
Réglage en hauteur
Oui
Réglage d’inclinaison
Oui
Normes / essais
NF P01-012, NF P01-013, tests laboratoire certifié
Finitions
Anodisé naturel 15 µm, thermolaqué RAL au choix
Poids
7 kg/m
Verres compatibles
Verre feuilleté trempé de 12,76mm a 21,52mm

Le SB360A – Kit 2500 mm
Le modèle SB360A en kit 2500 mm est livré dans une boîte de 2,5 mètres de long, contenant tous les accessoires nécessaires à la pose, à savoir :
- Profils en aluminium pré-percés
- Joints extérieurs et intérieurs
- Cales de réglage
- Parcloses de finition
- Capot latéral
- 2 connecteurs de profil
Une notice de pose illustrée peut également être intégrée dans chaque colis, sur simple demande.
Le SB360A – Profil 5000 mm
Le modèle SB360A en longueur de 5000 mm est livré pret a la pose, contenant tous les accessoires nécessaires à la pose, à savoir :
- Profils en aluminium pré-percés
- Joints extérieurs et intérieurs
- Cales de réglage
- Parcloses de finition
- Capot latéral












